logo
Przetargi » 2016
Budowa sieci kanalizacji deszczowej w ul. Brzechwy w Koluszkach

PRZETARG ZAKO艃CZONY




Koluszki: Budowa sieci kanalizacji deszczowej w ul. Brzechwy w Koluszkach
Numer og艂oszenia: 67346 - 2016; data zamieszczenia: 24.03.2016
OG艁OSZENIE O ZAM脫WIENIU - roboty budowlane

Numer og艂oszenia: 73116 - 2016; data zamieszczenia: 31.03.2016



OG艁OSZENIE O ZMIANIE OG艁OSZENIA

Og艂oszenie dotyczy: Og艂oszenia o zam贸wieniu.

Informacje o zmienianym og艂oszeniu: 67346 - 2016 data 24.03.2016 r.







TypRozmiarPobierzKomentarzData dodaniaLicznik 
.PDF1822.3 KB POBIERZOg艂oszenie o zam贸wieniu2016-03-24 14:24:45372
.DOC514.5 KB POBIERZCz臋艣膰 I- siwz2016-03-24 14:25:22423
.DOC245 KB POBIERZCz臋艣膰 II -umowa 2016-03-24 14:26:02389
.DOC49.5 KB POBIERZCz臋艣膰 III - opis przedmiotu2016-03-24 14:31:08396
.PDF433.1 KB POBIERZInformacja bioz Brzechwy2016-03-24 14:31:57367
graf.106.2 KB POBIERZMapa przegl膮dowa2016-03-24 14:32:29376
graf.2030.8 KB POBIERZPlan zagospodarowania terenu2016-03-24 14:33:25392
graf.1458.3 KB POBIERZProfil pod艂u偶ny2016-03-24 14:34:00434
.PDF598 KB POBIERZProjekt budowlany Brzechwy2016-03-24 14:34:19378
.PDF593.5 KB POBIERZProjekt wykonawczy2016-03-24 14:34:59410
.PDF141.7 KB POBIERZPrzedmiar rob贸t Brzechwy2016-03-24 14:35:29419
.PDF385.4 KB POBIERZSTWIORB Brzechwy2016-03-24 14:35:58396
?0.4 KB POBIERZWsp贸艂rz臋dne punkt贸w2016-03-24 14:36:28369
.PDF144.9 KB POBIERZOg艂oszenie o zmianie og艂oszenia2016-03-31 15:04:30323
.PDF109 KB POBIERZZmiana tre艣ci siwz2016-03-31 15:05:02382
.PDF6213.9 KB POBIERZOdpowiedzi na pytania Brzechwy Koluszki2016-04-08 14:42:11355
graf.420.9 KB POBIERZPismo urz臋du Miejskiego_ GID_7230_1_1_20162016-04-08 14:43:36332
graf.307.9 KB POBIERZSkrzy偶owanie kanalizacji z naftoci膮giem2016-04-08 14:44:06316
graf.320.6 KB POBIERZSkrzy偶owanie kanalizacji z naftoci膮giem2016-04-08 14:44:51333
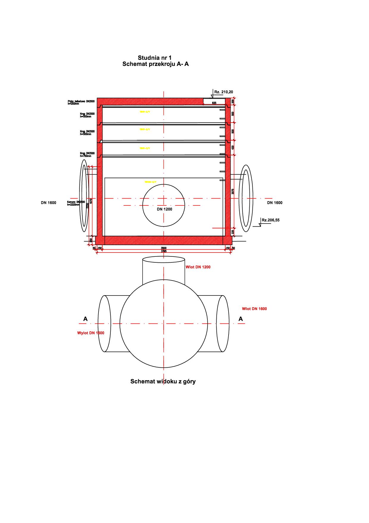
graf.112.9 KB POBIERZStudnia nr 12016-04-08 14:45:37339
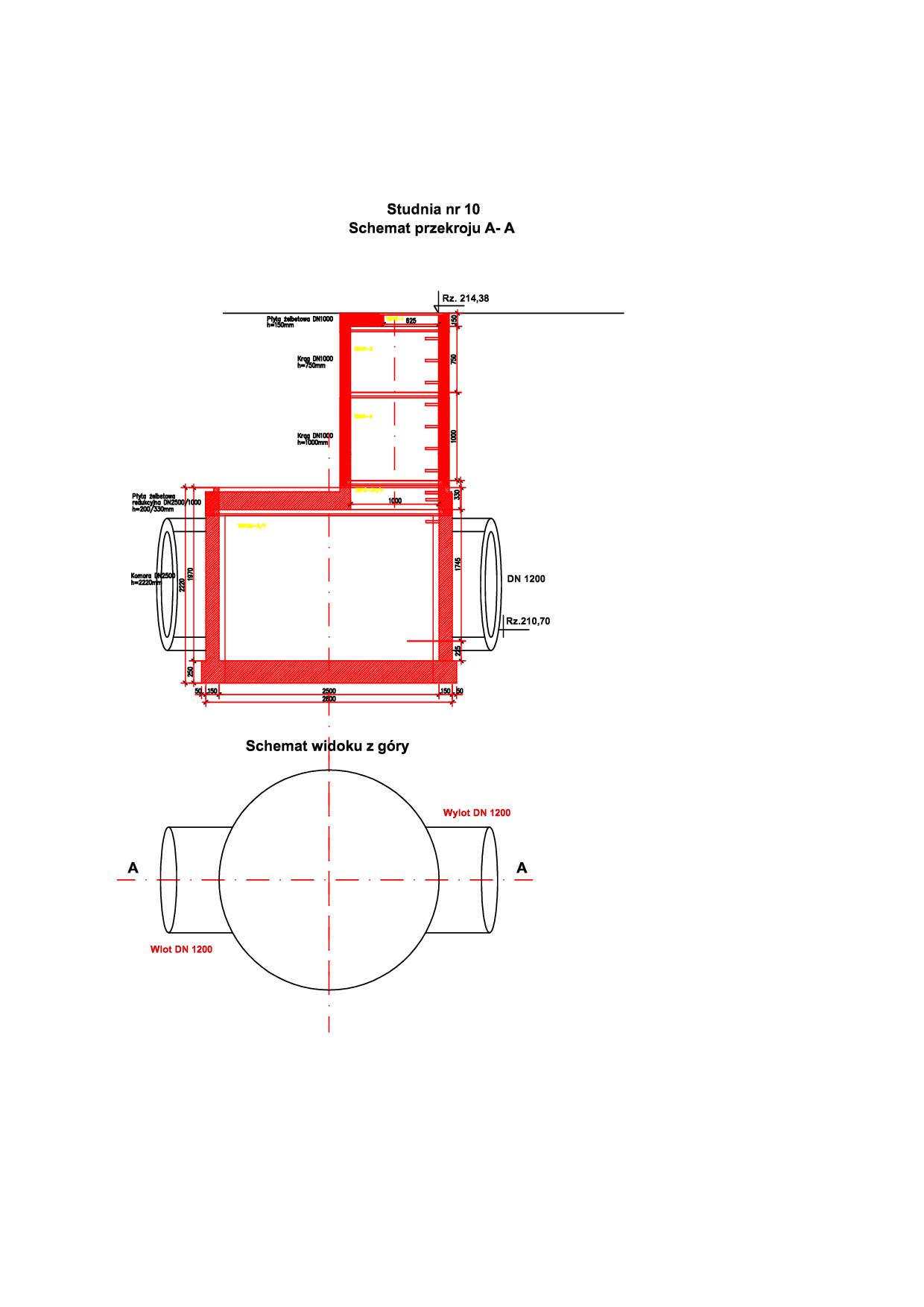
graf.92.8 KB POBIERZStudnia nr 102016-04-08 14:46:09317
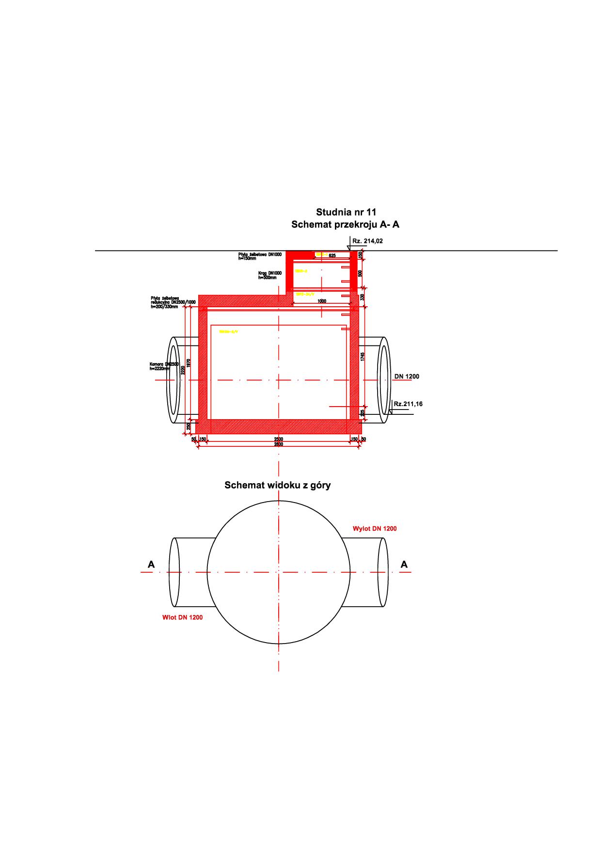
graf.93.1 KB POBIERZStudnia nr 112016-04-08 14:46:41307
graf.91.1 KB POBIERZStudnia nr 122016-04-08 14:47:25302
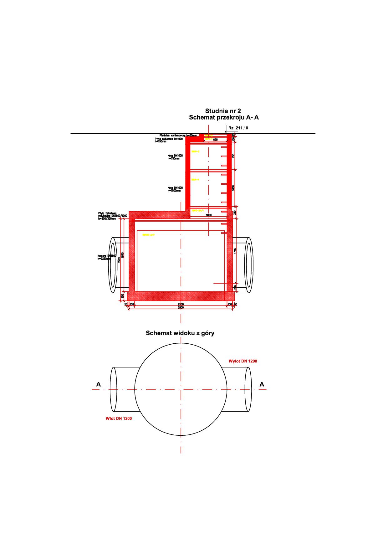
graf.95.2 KB POBIERZStudnia nr 22016-04-08 14:47:56321
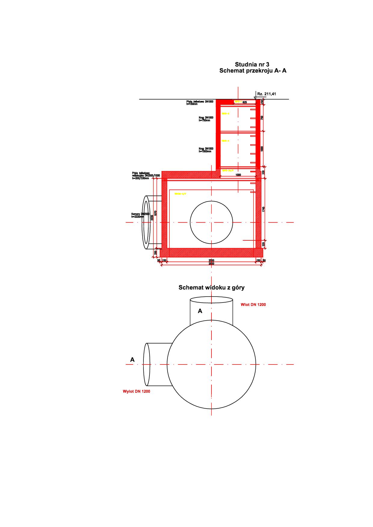
graf.96.1 KB POBIERZStudnia nr 32016-04-08 14:49:03313
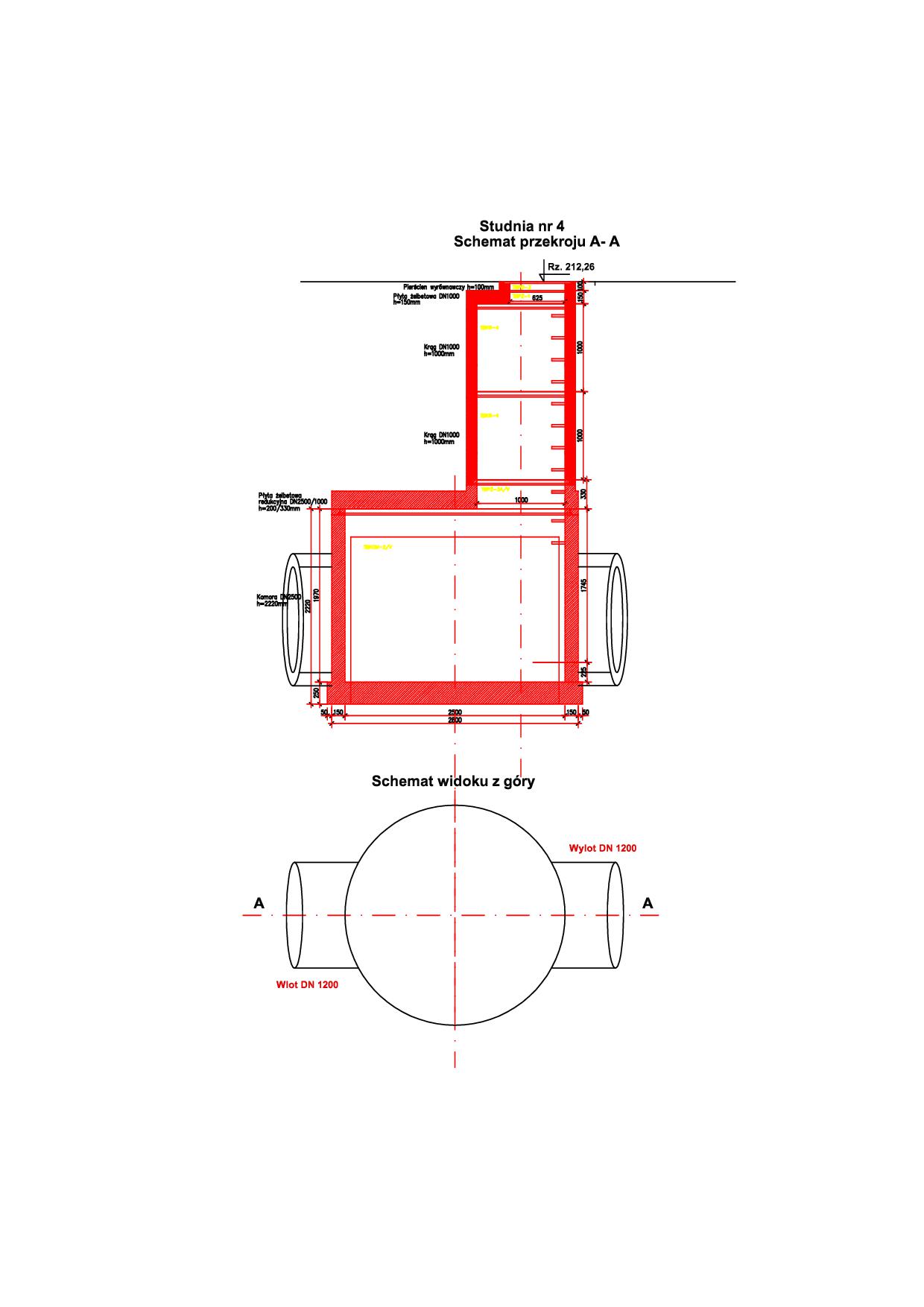
graf.96.4 KB POBIERZStudnia nr 42016-04-08 14:49:40297
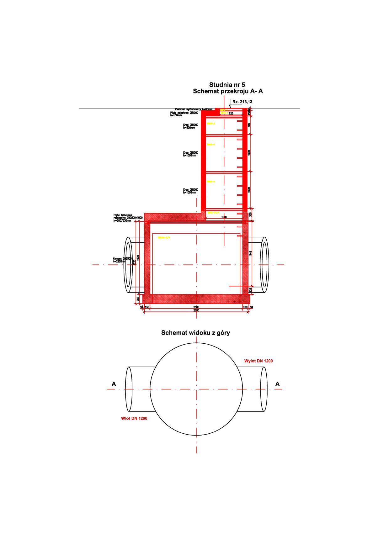
graf.100.1 KB POBIERZStudnia nr 52016-04-08 14:50:08289
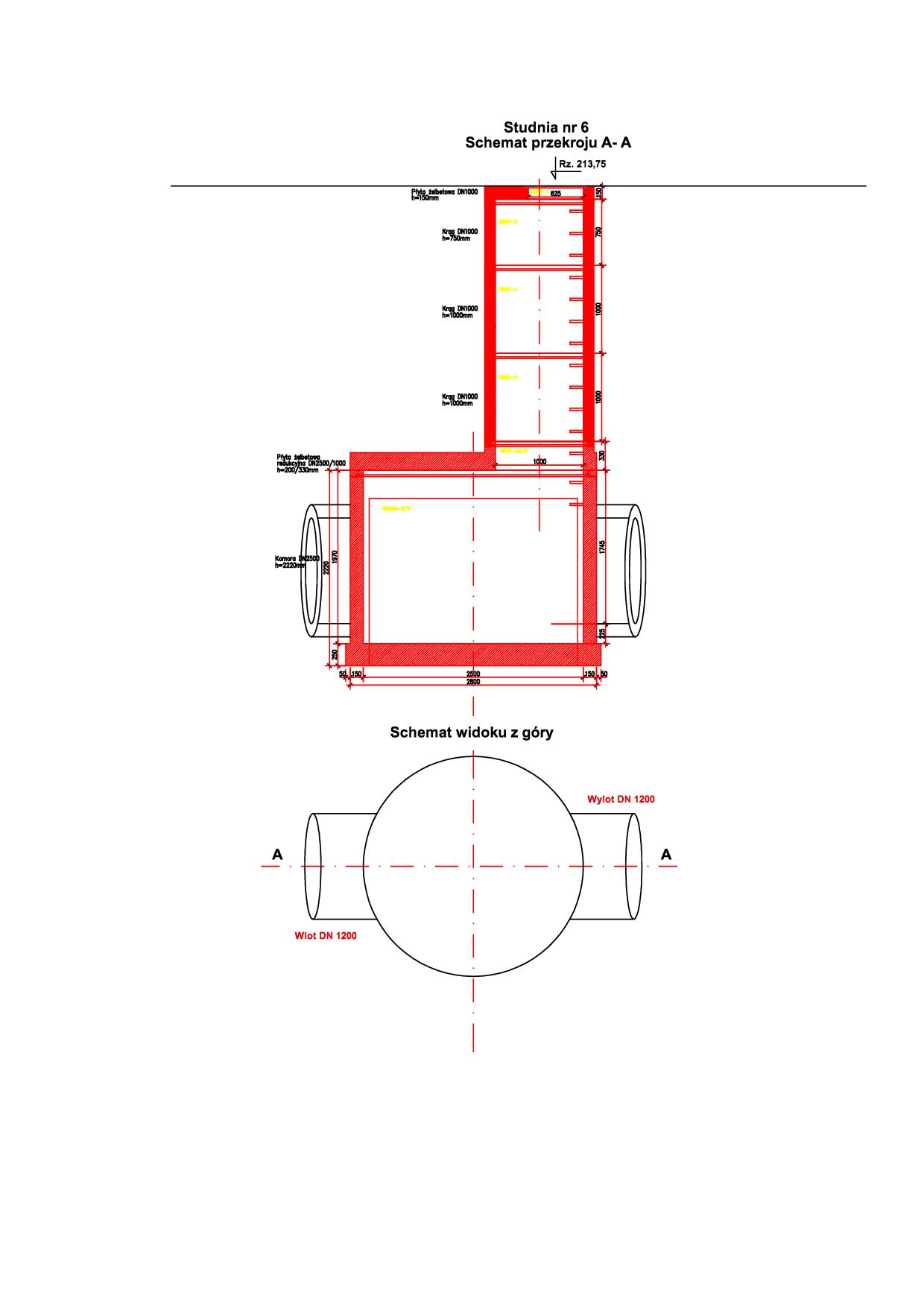
graf.99.8 KB POBIERZStudnia nr 62016-04-08 14:50:38300
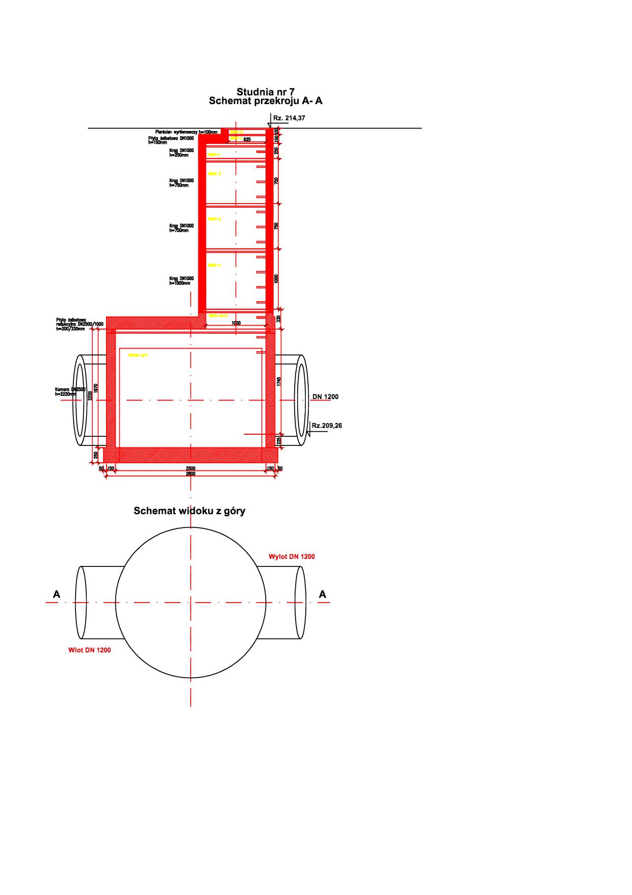
graf.103.8 KB POBIERZStudnia nr 72016-04-08 14:51:07299
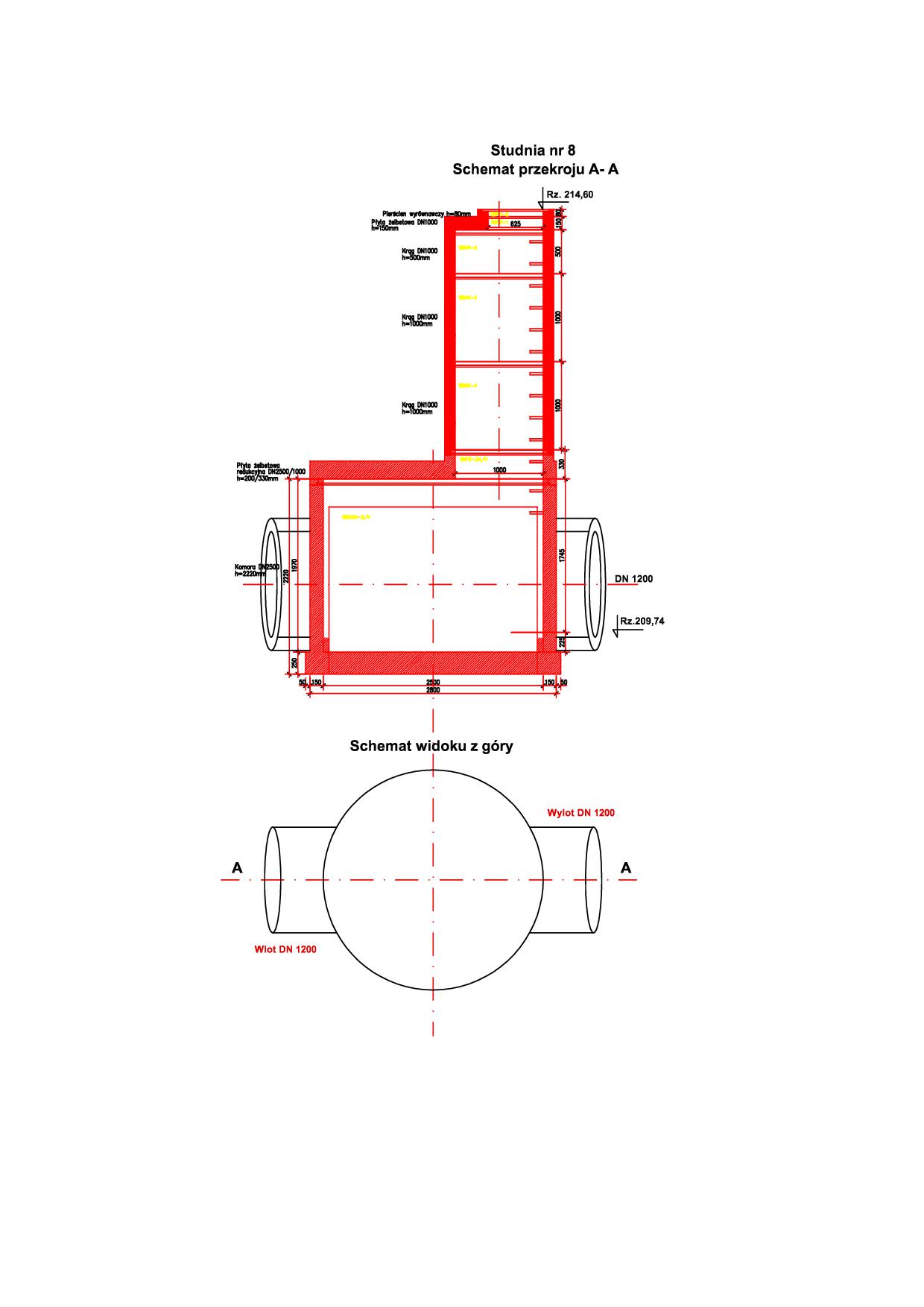
graf.100.6 KB POBIERZStudnia nr 82016-04-08 14:51:38306
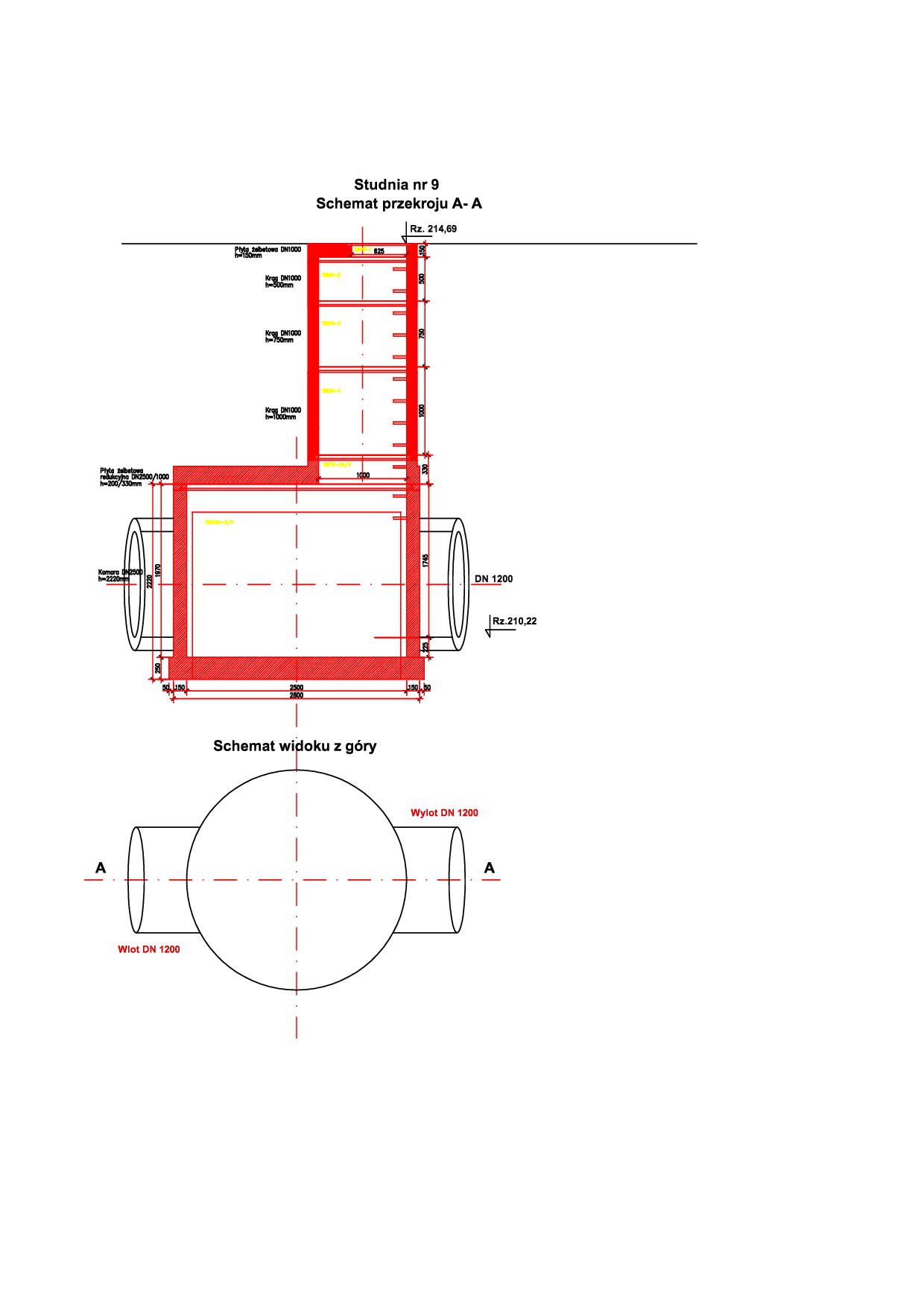
graf.99.5 KB POBIERZStudnia nr 92016-04-08 14:52:12293
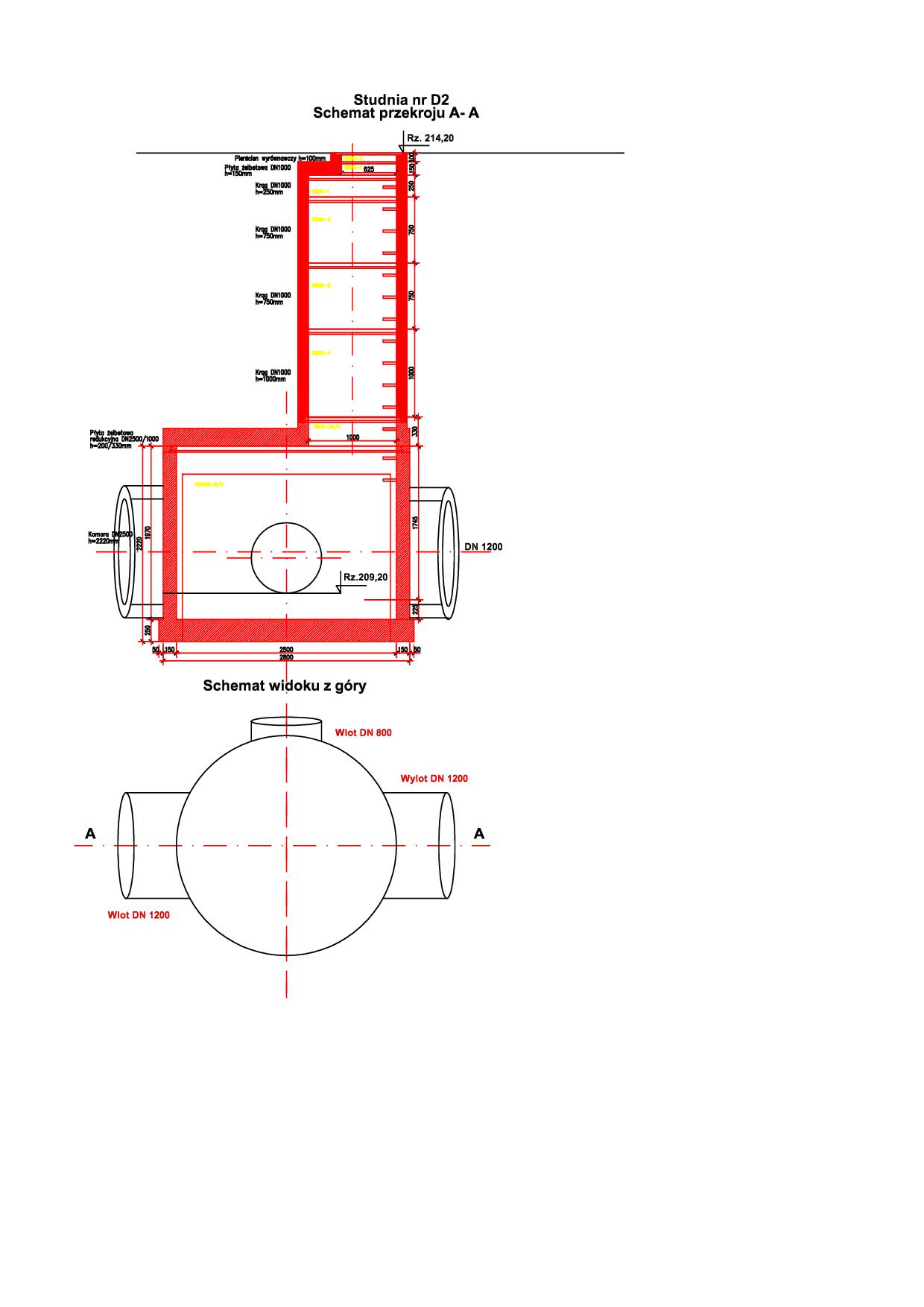
graf.107.7 KB POBIERZStudnia nr D22016-04-08 14:52:41304
graf.453.2 KB POBIERZUzgodnienie sieci kanal_z PERN2016-04-08 14:53:13298
graf.494.9 KB POBIERZWarunki techniczne2016-04-08 14:53:39299
graf.375.1 KB POBIERZZabezpieczenie punktu geodezyjnego2016-04-08 14:54:25311
.PDF287.9 KB POBIERZWyja艣nienia nr 22016-04-14 07:34:59313
graf.405.3 KB POBIERZOg艂oszenie o wynikach przetargu nieograniczonego2016-04-28 09:09:38346
graf.316.8 KB POBIERZOg艂oszenie o wynikach przetargu nieograniczonego22016-04-28 09:10:01328

Autor : 
Zredagowa艂(a) : Konrad
Data wprowadzenia : 2016-03-24 14:23:22
Data ostatniej modyfikacji : 2016-04-28 09:08:04
Liczba wy艣wietle艅 : 833

Redaktor  Data modyfikacji 
Konrad  31.03.2016 15:08poka偶 t膮 wersj臋
Konrad  31.03.2016 15:08poka偶 t膮 wersj臋
Konrad  31.03.2016 15:06poka偶 t膮 wersj臋
Konrad  31.03.2016 15:05poka偶 t膮 wersj臋
Konrad  31.03.2016 15:03poka偶 t膮 wersj臋
Konrad  24.03.2016 14:23poka偶 t膮 wersj臋



licznik odwiedzin: 624208